事業用 賃貸物件
事務所

シェラン袋町

15.4 万円
2.2万円
84.0万円
15.4万円
更新日:2025.11.11
所在地 広島市中区袋町3-28
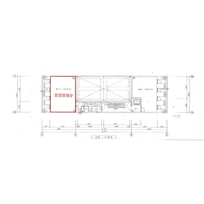
面積 53.92㎡(16.31坪)
交通 広島電鉄1系統本通駅まで徒歩1分
メールでのお問い合わせ 物件について問い合わせる 電話でのお問い合わせ 082-243-1010
お気に入りに追加する

この物件について

定期借家契約3年

基本情報

物件No 492
部屋No 501
所在地 広島市中区袋町3-28
交通 広島電鉄1系統本通駅まで徒歩1分
構造 鉄骨造
階 / 階建 5階 / 6階建
賃貸料 15.4万円
共益費 2.2万円
敷金 84.0万円
礼金 15.4万円
入居可能年月 即入居可
竣工日 1988/ 8
面積 53.92
坪数 16.31坪
部屋備考 冷暖、エレ
セキュリティ
内装仕上 事務所仕上げ
OAフロア
エアコン
エレベーター
電話設置
トイレ 有(共用)
給湯室 有(共用)
給湯 ガス給湯
ガス 都市ガス
備考1 --
備考2 --
入居状況 空室

物件所在地

所在地 広島市中区袋町3-28
交通 広島電鉄1系統本通駅まで徒歩1分
GoogleMapで見る

あなたにおすすめの物件

一覧を見る

米田ビル

広島市中区本通1-4
賃料 33.0万円 / 共益費 --万円

光町Uビル

広島市東区光町2-7-35
賃料 24.2万円 / 共益費 --万円

入江ビル

広島市中区新天地1-1
賃料 8.8万円 / 共益費 --万円

的場KK館

広島市南区的場町1-4-8
賃料 22.0万円 / 共益費 --万円

光町Uビル

広島市東区光町2-7-35
賃料 24.2万円 / 共益費 --万円

白純ビル

広島市中区新天地5-14
賃料 14.8万円 / 共益費 --万円

富士見町熊本ビル

広島市中区富士見町1-1
賃料 22.0万円 / 共益費 --万円

立町中央ビル

広島市中区立町2-1
賃料 132.0万円 / 共益費 11.0万円

大手町モリモトビル

広島市中区大手町2-5-8
賃料 8.3万円 / 共益費 --万円

築地ビル

広島市中区八丁堀12-22
賃料 9.6万円 / 共益費 --万円