事業用 賃貸物件
事務所

広島総合開発本社ビル

107.2 万円
--万円
585.1万円
--万円
更新日:2026.05.02
所在地 広島市西区己斐本町1-14-14
面積 348㎡(105.27坪)
交通 JR山陽本線西広島駅まで徒歩1分
メールでのお問い合わせ 物件について問い合わせる 電話でのお問い合わせ 082-243-1010
お気に入りに追加する

基本情報

物件No 2779
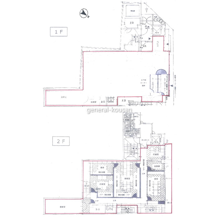
部屋No 1-2F
所在地 広島市西区己斐本町1-14-14
交通 JR山陽本線西広島駅まで徒歩1分
構造 鉄筋コンクリート造
階 / 階建 1-2階 / 8階建
賃貸料 107.2万円
共益費 --
敷金 585.1万円
礼金 --
入居可能年月 即入居可
竣工日 1973/10
面積 348
坪数 105.27坪
部屋備考 --
セキュリティ ALSOK(別途契約)
内装仕上 スケルトン
OAフロア
エアコン
エレベーター
電話設置 --
トイレ 有(2F共用部)
給湯室 有(2F共用部)
給湯 ガス給湯
ガス --
備考1 --
備考2 定期借家契約(10年)
広告塔料金 10,000円(税別)/月
入居状況 空室

物件所在地

所在地 広島市西区己斐本町1-14-14
交通 JR山陽本線西広島駅まで徒歩1分
GoogleMapで見る

あなたにおすすめの物件

一覧を見る

グランドビル大手町

広島市中区大手町2-11-2
賃料 55.1万円 / 共益費 13.7万円

第一ビル

広島市南区大須賀町14-12
賃料 75.9万円 / 共益費 7.5万円

ウツミ屋立町ビル

広島市中区立町2-30
賃料 81.2万円 / 共益費 27.0万円

チュリス八丁堀

広島市中区八丁堀6-7
賃料 19.2万円 / 共益費 --万円

メゾン ドゥ MURATA

広島市東区牛田本町4-6-6
賃料 17.6万円 / 共益費 --万円

カームレスト・R

広島市南区段原2-5-9
賃料 12.1万円 / 共益費 --万円

ポレスター広島

広島市中区中町7-5
賃料 24.2万円 / 共益費 --万円

紙屋町 ウツミ屋ビル

広島市中区紙屋町2-2-2
賃料 66.0万円 / 共益費 --万円

HCSビル

広島市中区大手町1-4-8
賃料 17.1万円 / 共益費 --万円

幟町ゼネラルビル

広島市中区幟町3-55
賃料 8.8万円 / 共益費 0.5万円