住居用 賃貸物件
4LDK

星和地所牛田コーポラス E棟

7.5 万円
--万円
22.5万円
--万円
更新日:2026.03.14
所在地 広島市東区牛田早稲田4-7-45
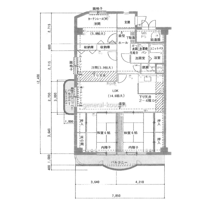
間取り 4LDK(93.64㎡)
交通 牛田早稲田団地バス停まで徒歩5分
メールでのお問い合わせ 物件について問い合わせる 電話でのお問い合わせ 082-243-1010
お気に入りに追加する

この物件について

室内リフォーム済み、分譲賃貸マンション

基本情報

物件No 4327
部屋No 308
所在地 広島市東区牛田早稲田4-7-45
交通 牛田早稲田団地バス停まで徒歩5分
構造 鉄筋コンクリート造
階建 3階 / 5階建
賃 貸 料(税込) 7.5万円
共 益 費(税込) --
敷 金(税込) 22.5万円
礼 金(税込) --
入居可能年月 即入居可
竣工日 1980/11
間取り 4LDK
全間取り内訳 和6 和6 洋5.8 洋5.9 LDK14.6
面積 93.64㎡
坪数 28.32坪
バルコニー面積 12.25㎡
買物 デイリーヤマザキ、セブンイレブン、ユアーズ
病院 新田内科医院、牛田歯科医院、ひがき眼科
駐車場有無 有り
駐車場料金区分 --
給湯 ガス給湯
ガス 都市ガス
コンロ 有(ガス3口以上)
キッチン
光ファイバー --
エアコン
浴室乾燥機能
洗面台 シャンプードレッサー
シャワートイレ
洗濯機置場 室内
バス・トイレ
追焚機能
CATV受信 --
BS受信 --
CS受信 --
フローリング
モニターフォン
エレベーター
オートロック
宅配BOX
ペット 不可
駐輪場
入居状況 空室
備考1 --
備考2 外壁リフォーム中(R6.8)
日当たり良好、角部屋
流し台、浴室、洗面台、トイレ、リフォーム済
備考3 --

物件所在地

所在地 広島市東区牛田早稲田4-7-45
交通 牛田早稲田団地バス停まで徒歩5分
GoogleMapで見る

あなたにおすすめの物件

一覧を見る

PAST(PARK SIDE TOWER)

広島市南区東雲3-16-2
賃料 3.6万円 / 共益費 --万円

モア・マリオ平和公園

広島市中区大手町2-10-10
賃料 6.3万円 / 共益費 --万円

モア・マリオ平和公園

広島市中区大手町2-10-10
賃料 6.3万円 / 共益費 --万円

パラソーレ大手町

広島市中区大手町3-13-26
賃料 6.7万円 / 共益費 0.3万円

カーサフジタ

広島市西区草津新町2-21-62-18
賃料 8.0万円 / 共益費 --万円

エイトバレー広島駅前通り

広島市南区松川町3-27
賃料 6.0万円 / 共益費 0.5万円

渡辺ビル

広島市中区大手町4-5-2
賃料 3.6万円 / 共益費 0.3万円

渡辺ビル

広島市中区大手町4-5-2
賃料 3.6万円 / 共益費 0.3万円

古葉ビル

広島市中区東白島町20-19
賃料 4.8万円 / 共益費 --万円

グレース幟町マンション

広島市中区幟町11-8
賃料 4.3万円 / 共益費 --万円