住居用 賃貸物件
1LDK

山下ビル

5.5 万円
--万円
16.5万円
--万円
更新日:2026.03.14
所在地 広島市西区庚午北2-13-38
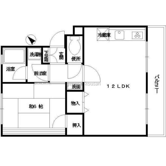
間取り 1LDK(43.61㎡)
交通 広島電鉄宮島線高須駅まで徒歩2分
メールでのお問い合わせ 物件について問い合わせる 電話でのお問い合わせ 082-243-1010
お気に入りに追加する

この物件について

買い物便利。電停徒歩圏内。

基本情報

物件No 1459
部屋No 402
所在地 広島市西区庚午北2-13-38
交通 広島電鉄宮島線高須駅まで徒歩2分
構造 鉄筋コンクリート造
階建 4階 / 4階建
賃 貸 料(税込) 5.5万円
共 益 費(税込) --
敷 金(税込) 16.5万円
礼 金(税込) --
入居可能年月 即入居可
竣工日 --
間取り 1LDK
全間取り内訳 和6 LDK12
面積 43.61㎡
坪数 --
バルコニー面積 5.67㎡
買物 ファミリーマート スパーク庚午店 ユアーズ高須店
病院 天野小児科医院、からさき歯科、うえ眼科、たなか皮ふ科アレルギー科
駐車場有無 有り
駐車場料金区分 --
給湯 ガス給湯
ガス 都市ガス
コンロ --
キッチン --
光ファイバー --
エアコン
浴室乾燥機能 --
洗面台 --
シャワートイレ --
洗濯機置場 室内
バス・トイレ
追焚機能 --
CATV受信 可(別途契約)
BS受信 --
CS受信 --
フローリング --
モニターフォン --
エレベーター
オートロック --
宅配BOX --
ペット 不可
駐輪場
入居状況 空室
備考1 --
備考2 近隣にスーパー有
備考3 --

物件所在地

所在地 広島市西区庚午北2-13-38
交通 広島電鉄宮島線高須駅まで徒歩2分
GoogleMapで見る

あなたにおすすめの物件

一覧を見る

PAST(PARK SIDE TOWER)

広島市南区東雲3-16-2
賃料 3.6万円 / 共益費 --万円

モア・マリオ平和公園

広島市中区大手町2-10-10
賃料 6.3万円 / 共益費 --万円

モア・マリオ平和公園

広島市中区大手町2-10-10
賃料 6.3万円 / 共益費 --万円

パラソーレ大手町

広島市中区大手町3-13-26
賃料 6.7万円 / 共益費 0.3万円

カーサフジタ

広島市西区草津新町2-21-62-18
賃料 8.0万円 / 共益費 --万円

エイトバレー広島駅前通り

広島市南区松川町3-27
賃料 6.0万円 / 共益費 0.5万円

渡辺ビル

広島市中区大手町4-5-2
賃料 3.6万円 / 共益費 0.3万円

渡辺ビル

広島市中区大手町4-5-2
賃料 3.6万円 / 共益費 0.3万円

古葉ビル

広島市中区東白島町20-19
賃料 4.8万円 / 共益費 --万円

グレース幟町マンション

広島市中区幟町11-8
賃料 4.3万円 / 共益費 --万円