ディアメゾン十日市町
15.0
万円
| 所在地 |
広島市中区十日市町1-2-11 |
| 間取り |
2LDK(63.11㎡) |
| 交通 |
広島電鉄2系統十日市町駅まで徒歩1分 |
お気に入りに追加する
基本情報
| 物件No |
3306 |
| 部屋No |
1303 |
| 所在地 |
広島市中区十日市町1-2-11 |
| 交通 |
広島電鉄2系統十日市町駅まで徒歩1分 |
| 構造 |
鉄筋コンクリート造 |
| 階建 |
13階 /
15階建 |
| 賃 貸 料(税込) |
15.0万円 |
| 共 益 費(税込) |
-- |
| 敷 金(税込) |
30.0万円 |
| 礼 金(税込) |
30.0万円 |
| 入居可能年月 |
即入居可 |
| 竣工日 |
2011/11 |
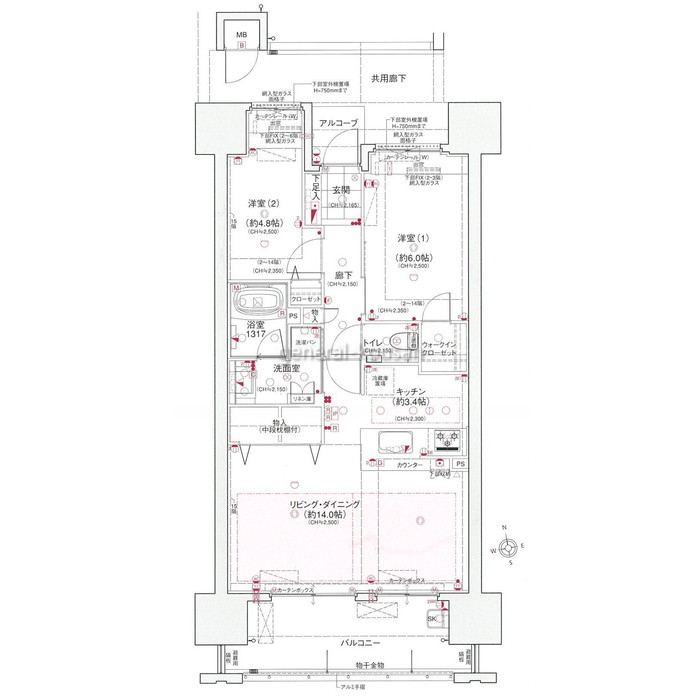
| 間取り |
2LDK |
| 全間取り内訳 |
洋6 洋4.8 LD14 K3.4 |
| 面積 |
63.11㎡ |
| 坪数 |
19.09坪 |
| バルコニー面積 |
11.43㎡ |
| 買物 |
ユアーズ十日市 セブンイレブン ファミリーマート |
| 病院 |
重川クリニック 梶山内科 広島記念病院 |
| 駐車場有無 |
無し |
| 駐車場料金区分 |
-- |
| 給湯 |
ガス給湯 |
| ガス |
都市ガス |
| コンロ |
有(ガス3口以上) |
| キッチン |
対面キッチン |
| 光ファイバー |
対応(別途契約要) |
| エアコン |
有(2基) |
| 浴室乾燥機能 |
有 |
| 洗面台 |
有 |
| シャワートイレ |
有 |
| 洗濯機置場 |
室内 |
| バス・トイレ |
別 |
| 追焚機能 |
有 |
| CATV受信 |
-- |
| BS受信 |
可(別途契約) |
| CS受信 |
可(別途契約) |
| フローリング |
有 |
| モニターフォン |
有 |
| エレベーター |
有 |
| オートロック |
有 |
| 宅配BOX |
有 |
| ペット |
不可 |
| 駐輪場 |
有(バイク不可) |
| 入居状況 |
空室 |
| 備考1 |
-- |
| 備考2 |
-- |
| 備考3 |
-- |
広島市中区大手町5-7-5
賃料 10.5万円 / 共益費 --万円
広島市中区富士見町16-16
賃料 5.8万円 / 共益費 0.3万円
安芸郡府中町本町3-9-1
賃料 5.5万円 / 共益費 --万円
広島市中区富士見町9-23
賃料 7.6万円 / 共益費 0.6万円
広島市中区国泰寺町2-1-24
賃料 6.0万円 / 共益費 --万円
広島市安佐南区中筋1-4-3
賃料 9.2万円 / 共益費 --万円
広島市安佐南区中筋1-4-3
賃料 9.6万円 / 共益費 --万円
広島市南区東雲本町2-12-28
賃料 6.5万円 / 共益費 --万円
広島市南区東雲本町2-12-28
賃料 6.3万円 / 共益費 --万円
広島市西区己斐本町3-12-33
賃料 10.0万円 / 共益費 --万円