事業用 賃貸物件
店舗

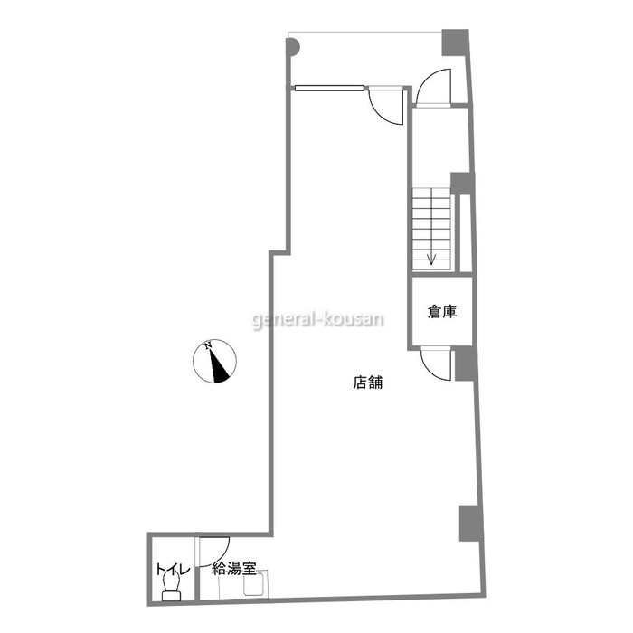
榎崎中町ビル

27.5 万円
0.5万円
200.0万円
27.5万円
更新日:2026.01.21
所在地 広島市中区中町4-24
面積 53.32㎡(16.12坪)
交通 --
メールでのお問い合わせ 物件について問い合わせる 電話でのお問い合わせ 082-243-1010
お気に入りに追加する

基本情報

物件No 5866
部屋No 101
所在地 広島市中区中町4-24
交通 --
構造 鉄骨造
階 / 階建 1階 / 6階建
賃貸料 27.5万円
共益費 0.5万円
敷金 200.0万円
礼金 27.5万円
入居可能年月 即入居可
竣工日 1978/ 6
面積 53.32
坪数 16.12坪
部屋備考 --
セキュリティ テナント契約
内装仕上 現状渡し(スケルトン渡し相談)
OAフロア
エアコン
エレベーター
電話設置
トイレ 有(サービス品)
給湯室 有(サービス品)
給湯 瞬間湯沸器
ガス 都市ガス
備考1 --
備考2 飲食店不可
家賃保証会社加入要
入居状況 空室

あなたにおすすめの物件

一覧を見る

第3イワヒロビル

広島市中区大手町2-11-19
賃料 19.8万円 / 共益費 --万円

渡辺ビル

広島市中区大手町4-5-2
賃料 46.6万円 / 共益費 2.8万円

渡辺ビル

広島市中区大手町4-5-2
賃料 16.5万円 / 共益費 --万円

渡辺ビル

広島市中区大手町4-5-2
賃料 63.1万円 / 共益費 2.8万円

佐々木ビル

広島市中区小町9-2
賃料 30.0万円 / 共益費 --万円

コートサウスウエスト

広島市中区舟入南2-7-17
賃料 20.2万円 / 共益費 --万円

金座街 永井ビル

広島市中区堀川町7-14
賃料 41.8万円 / 共益費 --万円

HKビル

広島市中区昭和町4-27
賃料 9.9万円 / 共益費 --万円

グランドビル大手町

広島市中区大手町2-11-2
賃料 61.7万円 / 共益費 --万円

大手町一番ビル

広島市中区大手町1-1-26
賃料 6.6万円 / 共益費 --万円