事業用 賃貸物件
事務所

HKビル

9.9 万円
--万円
54.0万円
--万円
更新日:2026.05.02
所在地 広島市中区昭和町4-27
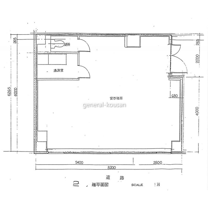
面積 50.01㎡(15.12坪)
交通 広島電鉄5系統比治山橋駅まで徒歩8分
メールでのお問い合わせ 物件について問い合わせる 電話でのお問い合わせ 082-243-1010
お気に入りに追加する

基本情報

物件No 985
部屋No 201
所在地 広島市中区昭和町4-27
交通 広島電鉄5系統比治山橋駅まで徒歩8分
構造 鉄筋コンクリート造
階 / 階建 2階 / 5階建
賃貸料 9.9万円
共益費 --
敷金 54.0万円
礼金 --
入居可能年月 2026/ 7 上旬
竣工日 1989/ 3
面積 50.01
坪数 15.12坪
部屋備考 冷暖
セキュリティ
内装仕上 事務所仕上げ
OAフロア
エアコン
エレベーター
電話設置
トイレ
給湯室
給湯 ガス給湯
ガス 広島ガス
備考1 --
備考2 --
入居状況 解約予定

物件所在地

所在地 広島市中区昭和町4-27
交通 広島電鉄5系統比治山橋駅まで徒歩8分
GoogleMapで見る

あなたにおすすめの物件

一覧を見る

グランドビル大手町

広島市中区大手町2-11-2
賃料 55.1万円 / 共益費 13.7万円

第一ビル

広島市南区大須賀町14-12
賃料 75.9万円 / 共益費 7.5万円

ウツミ屋立町ビル

広島市中区立町2-30
賃料 81.2万円 / 共益費 27.0万円

チュリス八丁堀

広島市中区八丁堀6-7
賃料 19.2万円 / 共益費 --万円

メゾン ドゥ MURATA

広島市東区牛田本町4-6-6
賃料 17.6万円 / 共益費 --万円

カームレスト・R

広島市南区段原2-5-9
賃料 12.1万円 / 共益費 --万円

ポレスター広島

広島市中区中町7-5
賃料 24.2万円 / 共益費 --万円

紙屋町 ウツミ屋ビル

広島市中区紙屋町2-2-2
賃料 66.0万円 / 共益費 --万円

HCSビル

広島市中区大手町1-4-8
賃料 17.1万円 / 共益費 --万円

幟町ゼネラルビル

広島市中区幟町3-55
賃料 8.8万円 / 共益費 0.5万円