事業用 賃貸物件
倉庫

大手町モリモトビル

8.3 万円
--万円
45.6万円
--万円
更新日:2026.03.14
所在地 広島市中区大手町2-5-8
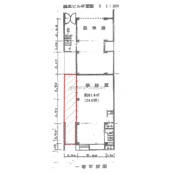
面積 31.27㎡(9.46坪)
交通 広島電鉄1系統袋町駅まで徒歩2分
メールでのお問い合わせ 物件について問い合わせる 電話でのお問い合わせ 082-243-1010
お気に入りに追加する

基本情報

物件No 2629
部屋No 10B
所在地 広島市中区大手町2-5-8
交通 広島電鉄1系統袋町駅まで徒歩2分
構造 鉄筋コンクリート
階 / 階建 -- / 5階建
賃貸料 8.3万円
共益費 --
敷金 45.6万円
礼金 --
入居可能年月 即入居可
竣工日 1963/ 3
面積 31.27
坪数 9.46坪
部屋備考 --
セキュリティ --
内装仕上 スケルトン
OAフロア
エアコン
エレベーター
電話設置 --
トイレ
給湯室
給湯 --
ガス --
備考1 --
備考2 保証会社加入要
定期借家(5年)
入居状況 空室

物件所在地

所在地 広島市中区大手町2-5-8
交通 広島電鉄1系統袋町駅まで徒歩2分
GoogleMapで見る

あなたにおすすめの物件

一覧を見る

メゾン ドゥ MURATA

広島市東区牛田本町4-6-6
賃料 17.6万円 / 共益費 --万円

カームレスト・R

広島市南区段原2-5-9
賃料 12.1万円 / 共益費 --万円

紙屋町 ウツミ屋ビル

広島市中区紙屋町2-2-2
賃料 66.0万円 / 共益費 --万円

サンシャイン4ビル(山下ビル)

広島市中区本通1-2
賃料 36.3万円 / 共益費 --万円

HCSビル

広島市中区大手町1-4-8
賃料 17.1万円 / 共益費 --万円

幟町ゼネラルビル

広島市中区幟町3-55
賃料 8.8万円 / 共益費 0.5万円

渡辺ビル

広島市中区大手町4-5-2
賃料 46.6万円 / 共益費 2.8万円

渡辺ビル

広島市中区大手町4-5-2
賃料 16.5万円 / 共益費 --万円

渡辺ビル

広島市中区大手町4-5-2
賃料 63.1万円 / 共益費 2.8万円

コートサウスウエスト

広島市中区舟入南2-7-17
賃料 20.2万円 / 共益費 --万円