事業用 賃貸物件
事務所

広島城南リバーサイドB.L.D.

14.6 万円
3.9万円
80.0万円
--万円
更新日:2026.01.22
所在地 広島市中区寺町5-20
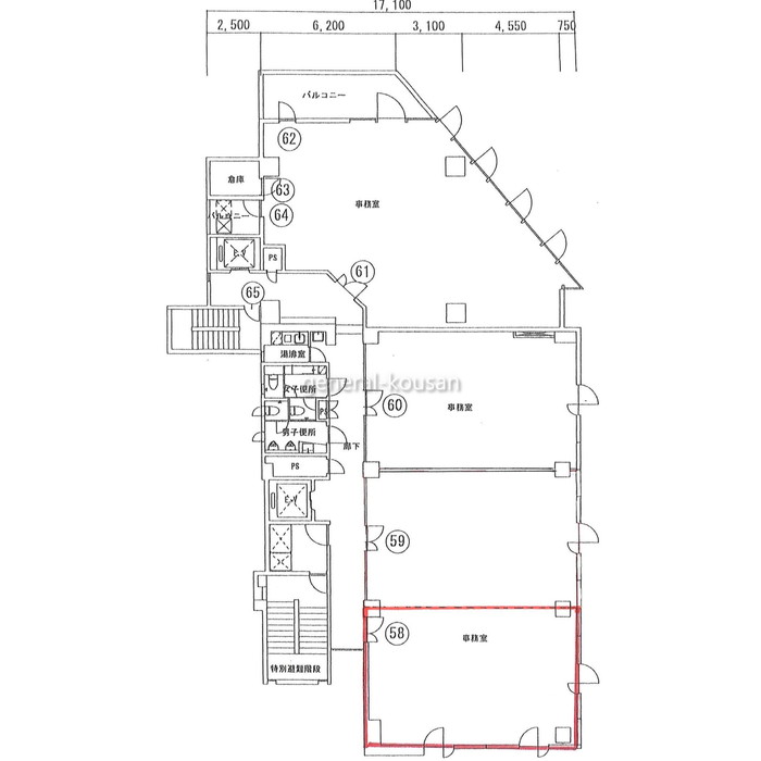
面積 58.81㎡(17.79坪)
交通 広島電鉄8系統寺町駅まで徒歩3分
メールでのお問い合わせ 物件について問い合わせる 電話でのお問い合わせ 082-243-1010
お気に入りに追加する

基本情報

物件No 741
部屋No 701
所在地 広島市中区寺町5-20
交通 広島電鉄8系統寺町駅まで徒歩3分
構造 鉄骨鉄筋コンクリート造
階 / 階建 7階 / 12階建
賃貸料 14.6万円
共益費 3.9万円
敷金 80.0万円
礼金 --
入居可能年月 即入居可
竣工日 1985/12
面積 58.81
坪数 17.79坪
部屋備考 --
セキュリティ 有(セコム)
内装仕上 事務所仕上げ
OAフロア --
エアコン
エレベーター 有(2基)
電話設置
トイレ 有(共用)
給湯室 有(共用)
給湯 --
ガス なし
備考1 --
備考2 --
入居状況 空室

物件所在地

所在地 広島市中区寺町5-20
交通 広島電鉄8系統寺町駅まで徒歩3分
GoogleMapで見る

あなたにおすすめの物件

一覧を見る

幟町ゼネラルビル

広島市中区幟町3-55
賃料 8.8万円 / 共益費 0.5万円

第3イワヒロビル

広島市中区大手町2-11-19
賃料 19.8万円 / 共益費 --万円

渡辺ビル

広島市中区大手町4-5-2
賃料 46.6万円 / 共益費 2.8万円

渡辺ビル

広島市中区大手町4-5-2
賃料 16.5万円 / 共益費 --万円

渡辺ビル

広島市中区大手町4-5-2
賃料 63.1万円 / 共益費 2.8万円

榎崎中町ビル

広島市中区中町4-24
賃料 27.5万円 / 共益費 0.5万円

佐々木ビル

広島市中区小町9-2
賃料 30.0万円 / 共益費 --万円

コートサウスウエスト

広島市中区舟入南2-7-17
賃料 20.2万円 / 共益費 --万円

金座街 永井ビル

広島市中区堀川町7-14
賃料 41.8万円 / 共益費 --万円

HKビル

広島市中区昭和町4-27
賃料 9.9万円 / 共益費 --万円