事業用 賃貸物件
店舗

中町エスポアールビル

61.6 万円
3.0万円
336.0万円
61.6万円
更新日:2025.11.12
所在地 広島市中区中町4-18
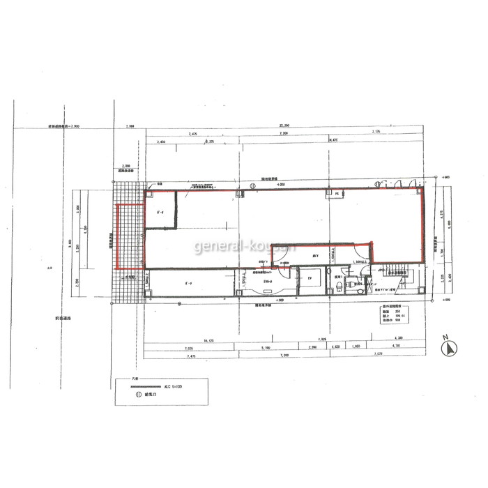
面積 132.24㎡(40坪)
交通 広島電鉄1系統袋町駅まで徒歩5分
メールでのお問い合わせ 物件について問い合わせる 電話でのお問い合わせ 082-243-1010
お気に入りに追加する

基本情報

物件No 3361
部屋No 1F
所在地 広島市中区中町4-18
交通 広島電鉄1系統袋町駅まで徒歩5分
構造 鉄骨造
階 / 階建 1階 / 7階建
賃貸料 61.6万円
共益費 3.0万円
敷金 336.0万円
礼金 61.6万円
入居可能年月 2026/ 2 上旬
竣工日 2007/ 7
面積 132.24
坪数 40坪
部屋備考 --
セキュリティ --
内装仕上 現状渡し(飲食店内装有)
OAフロア --
エアコン 無(引継ぎ相談)
エレベーター
電話設置 --
トイレ 有(サービス無)
給湯室 引継ぎ相談
給湯 --
ガス --
備考1 --
備考2 契約面積は店舗前2.74坪含む
入居状況 空室

あなたにおすすめの物件

一覧を見る

米田ビル

広島市中区本通1-4
賃料 33.0万円 / 共益費 --万円

光町Uビル

広島市東区光町2-7-35
賃料 24.2万円 / 共益費 --万円

入江ビル

広島市中区新天地1-1
賃料 8.8万円 / 共益費 --万円

的場KK館

広島市南区的場町1-4-8
賃料 22.0万円 / 共益費 --万円

光町Uビル

広島市東区光町2-7-35
賃料 24.2万円 / 共益費 --万円

白純ビル

広島市中区新天地5-14
賃料 14.8万円 / 共益費 --万円

富士見町熊本ビル

広島市中区富士見町1-1
賃料 22.0万円 / 共益費 --万円

立町中央ビル

広島市中区立町2-1
賃料 132.0万円 / 共益費 11.0万円

大手町モリモトビル

広島市中区大手町2-5-8
賃料 8.3万円 / 共益費 --万円

築地ビル

広島市中区八丁堀12-22
賃料 9.6万円 / 共益費 --万円