事業用 賃貸物件
事務所

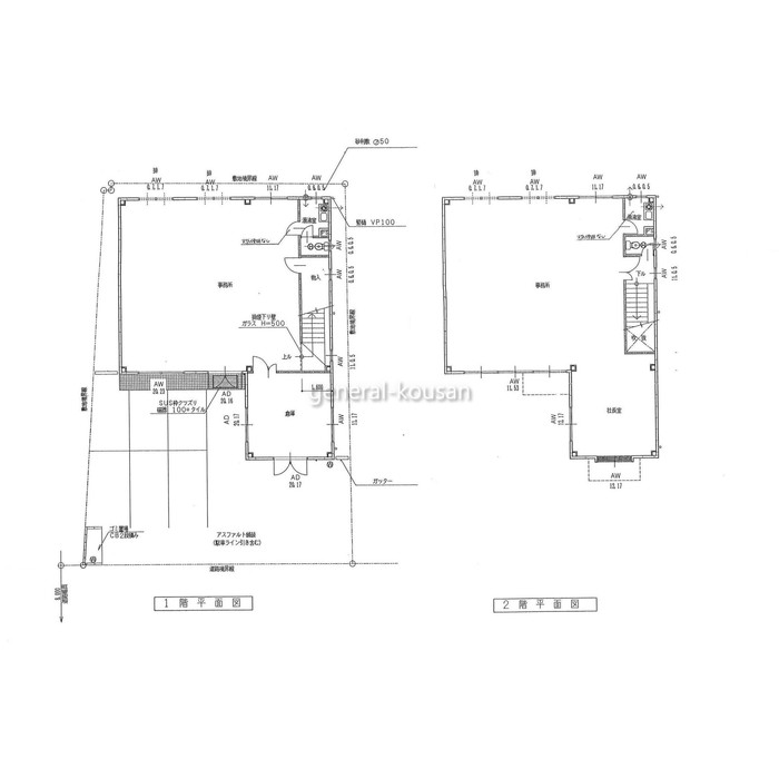
舟入中町貸事務所

66.0 万円
--万円
360.0万円
60.0万円
更新日:2026.03.14
所在地 広島市中区舟入中町4-39
面積 238.5㎡(72.14坪)
交通 --
メールでのお問い合わせ 物件について問い合わせる 電話でのお問い合わせ 082-243-1010
お気に入りに追加する

基本情報

物件No 3937
部屋No *
所在地 広島市中区舟入中町4-39
交通 --
構造 鉄骨造
階 / 階建 1-2階 / 2階建
賃貸料 66.0万円
共益費 --
敷金 360.0万円
礼金 60.0万円
入居可能年月 2026/ 4 上旬
竣工日 1998/ 6
面積 238.5
坪数 72.14坪
部屋備考 --
セキュリティ --
内装仕上 事務所仕上げ
OAフロア --
エアコン --
エレベーター
電話設置
トイレ 有(専用)
給湯室 有(専用)
給湯 --
ガス --
備考1 --
備考2 --
入居状況 解約予定

あなたにおすすめの物件

一覧を見る

メゾン ドゥ MURATA

広島市東区牛田本町4-6-6
賃料 17.6万円 / 共益費 --万円

カームレスト・R

広島市南区段原2-5-9
賃料 12.1万円 / 共益費 --万円

紙屋町 ウツミ屋ビル

広島市中区紙屋町2-2-2
賃料 66.0万円 / 共益費 --万円

サンシャイン4ビル(山下ビル)

広島市中区本通1-2
賃料 36.3万円 / 共益費 --万円

HCSビル

広島市中区大手町1-4-8
賃料 17.1万円 / 共益費 --万円

幟町ゼネラルビル

広島市中区幟町3-55
賃料 8.8万円 / 共益費 0.5万円

渡辺ビル

広島市中区大手町4-5-2
賃料 46.6万円 / 共益費 2.8万円

渡辺ビル

広島市中区大手町4-5-2
賃料 16.5万円 / 共益費 --万円

渡辺ビル

広島市中区大手町4-5-2
賃料 63.1万円 / 共益費 2.8万円

コートサウスウエスト

広島市中区舟入南2-7-17
賃料 20.2万円 / 共益費 --万円