事業用 賃貸物件
店舗

カサーレ並木通

53.2 万円
3.9万円
580.0万円
53.2万円
更新日:2025.11.12
所在地 広島市中区袋町9-2
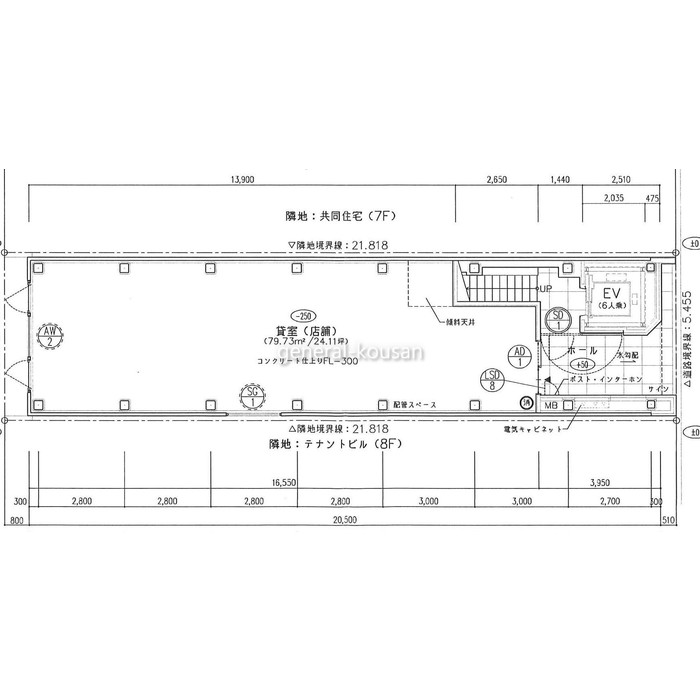
面積 79.73㎡(24.11坪)
交通 --
メールでのお問い合わせ 物件について問い合わせる 電話でのお問い合わせ 082-243-1010
お気に入りに追加する

基本情報

物件No 5056
部屋No 1F
所在地 広島市中区袋町9-2
交通 --
構造 鉄骨造
階 / 階建 1階 / 5階建
賃貸料 53.2万円
共益費 3.9万円
敷金 580.0万円
礼金 53.2万円
入居可能年月 即入居可
竣工日 2022/ 2
面積 79.73
坪数 24.11坪
部屋備考 --
セキュリティ テナント契約
内装仕上 下地まで
OAフロア
エアコン 有(サービス品)
エレベーター
電話設置
トイレ 有(サービス品)
給湯室 有(サービス品)
給湯 --
ガス 都市ガス
備考1 --
備考2 ゴミの収集については、ビル指定収集会社とご契約願います。
家賃保証会社加入要、並木通り商店街組合加入要
入居状況 解約予定

物件所在地

所在地 広島市中区袋町9-2
交通 --
GoogleMapで見る

あなたにおすすめの物件

一覧を見る

米田ビル

広島市中区本通1-4
賃料 33.0万円 / 共益費 --万円

光町Uビル

広島市東区光町2-7-35
賃料 24.2万円 / 共益費 --万円

入江ビル

広島市中区新天地1-1
賃料 8.8万円 / 共益費 --万円

的場KK館

広島市南区的場町1-4-8
賃料 22.0万円 / 共益費 --万円

光町Uビル

広島市東区光町2-7-35
賃料 24.2万円 / 共益費 --万円

白純ビル

広島市中区新天地5-14
賃料 14.8万円 / 共益費 --万円

富士見町熊本ビル

広島市中区富士見町1-1
賃料 22.0万円 / 共益費 --万円

立町中央ビル

広島市中区立町2-1
賃料 132.0万円 / 共益費 11.0万円

大手町モリモトビル

広島市中区大手町2-5-8
賃料 8.3万円 / 共益費 --万円

築地ビル

広島市中区八丁堀12-22
賃料 9.6万円 / 共益費 --万円