事業用 賃貸物件
店舗

楽々園マンション

15.0 万円
--万円
90.0万円
--万円
更新日:2026.04.13
所在地 広島市佐伯区楽々園1-3-18
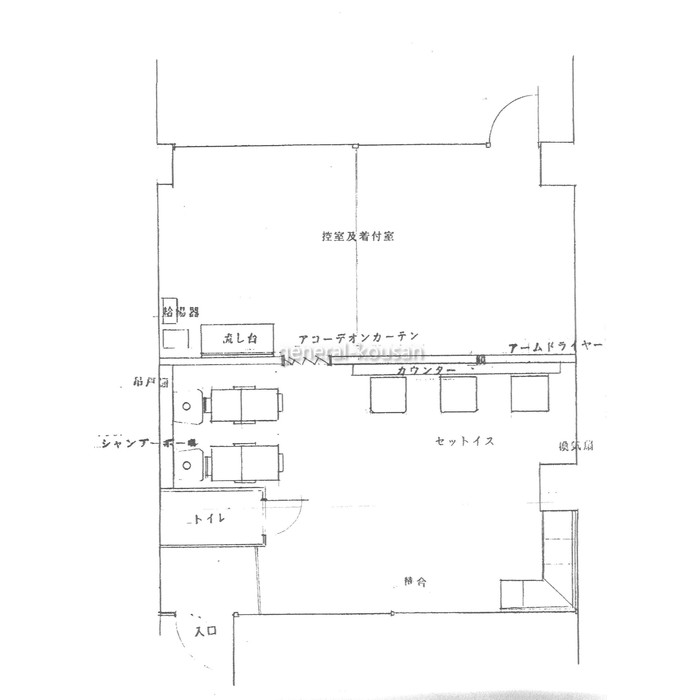
面積 57.05㎡(17.25坪)
交通 広島電鉄宮島線楽々園駅まで徒歩2分
メールでのお問い合わせ 物件について問い合わせる 電話でのお問い合わせ 082-243-1010
お気に入りに追加する

基本情報

物件No 5326
部屋No 101
所在地 広島市佐伯区楽々園1-3-18
交通 広島電鉄宮島線楽々園駅まで徒歩2分
構造 鉄筋コンクリート造
階 / 階建 1階 / 8階建
賃貸料 15.0万円
共益費 --
敷金 90.0万円
礼金 --
入居可能年月 即入居可
竣工日 1975/ 2
面積 57.05
坪数 17.25坪
部屋備考 --
セキュリティ テナント契約
内装仕上 スケルトン
OAフロア
エアコン
エレベーター
電話設置
トイレ
給湯室
給湯
ガス --
備考1 --
備考2 --
入居状況 空室

物件所在地

所在地 広島市佐伯区楽々園1-3-18
交通 広島電鉄宮島線楽々園駅まで徒歩2分
GoogleMapで見る

あなたにおすすめの物件

一覧を見る

第一ビル

広島市南区大須賀町14-12
賃料 75.9万円 / 共益費 7.5万円

ウツミ屋立町ビル

広島市中区立町2-30
賃料 81.2万円 / 共益費 27.0万円

チュリス八丁堀

広島市中区八丁堀6-7
賃料 19.2万円 / 共益費 --万円

メゾン ドゥ MURATA

広島市東区牛田本町4-6-6
賃料 17.6万円 / 共益費 --万円

カームレスト・R

広島市南区段原2-5-9
賃料 12.1万円 / 共益費 --万円

ポレスター広島

広島市中区中町7-5
賃料 24.2万円 / 共益費 --万円

紙屋町 ウツミ屋ビル

広島市中区紙屋町2-2-2
賃料 66.0万円 / 共益費 --万円

HCSビル

広島市中区大手町1-4-8
賃料 17.1万円 / 共益費 --万円

幟町ゼネラルビル

広島市中区幟町3-55
賃料 8.8万円 / 共益費 0.5万円

渡辺ビル

広島市中区大手町4-5-2
賃料 46.6万円 / 共益費 2.8万円