事業用 賃貸物件
店舗

アーバンビュー小町

4.4 万円
0.3万円
24.0万円
4.4万円
更新日:2026.04.15
所在地 広島市中区小町2-26
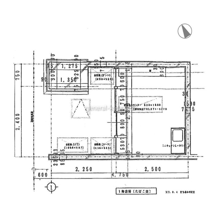
面積 7.87㎡(2.38坪)
交通 小町バス停まで徒歩1分
メールでのお問い合わせ 物件について問い合わせる 電話でのお問い合わせ 082-243-1010
お気に入りに追加する

基本情報

物件No 550
部屋No 102
所在地 広島市中区小町2-26
交通 小町バス停まで徒歩1分
構造 鉄骨鉄筋コンクリート
階 / 階建 1階 / 14階建
賃貸料 4.4万円
共益費 0.3万円
敷金 24.0万円
礼金 4.4万円
入居可能年月 2026/ 8 上旬
竣工日 1996/ 2
面積 7.87
坪数 2.38坪
部屋備考 --
セキュリティ --
内装仕上 現状渡し
OAフロア
エアコン 無(引継ぎ相談)
エレベーター
電話設置 不可
トイレ
給湯室 流し台あり
給湯
ガス
備考1 --
備考2 前面空間使用可(約5㎡)
入居状況 解約予定

物件所在地

所在地 広島市中区小町2-26
交通 小町バス停まで徒歩1分
GoogleMapで見る

あなたにおすすめの物件

一覧を見る

グランドビル大手町

広島市中区大手町2-11-2
賃料 55.1万円 / 共益費 13.7万円

第一ビル

広島市南区大須賀町14-12
賃料 75.9万円 / 共益費 7.5万円

ウツミ屋立町ビル

広島市中区立町2-30
賃料 81.2万円 / 共益費 27.0万円

チュリス八丁堀

広島市中区八丁堀6-7
賃料 19.2万円 / 共益費 --万円

メゾン ドゥ MURATA

広島市東区牛田本町4-6-6
賃料 17.6万円 / 共益費 --万円

カームレスト・R

広島市南区段原2-5-9
賃料 12.1万円 / 共益費 --万円

ポレスター広島

広島市中区中町7-5
賃料 24.2万円 / 共益費 --万円

紙屋町 ウツミ屋ビル

広島市中区紙屋町2-2-2
賃料 66.0万円 / 共益費 --万円

HCSビル

広島市中区大手町1-4-8
賃料 17.1万円 / 共益費 --万円

幟町ゼネラルビル

広島市中区幟町3-55
賃料 8.8万円 / 共益費 0.5万円